■Property Name/Park Court Roppongi Hilltop〈15F〉
■Location/ 1-7-10 Roppongi, Minato-ku, Tokyo (residence indication)
■Transportation/2 min. walk from “Roppongi-itchome” station on Tokyo Metro Namboku Line 8 min. walk from “Kamiyacho” station on Tokyo Metro Hibiya Line 9 min. walk from “Tameike-sanno” station on Tokyo Metro Ginza Line
■Structure/Reinforced concrete structure, flat roof, 15 floors above ground and 2 floors below ground
■Total units/270
■Year Built/February 2023
■sales company/Mitsui Fudosan Residential Co.
■construction company/Shimizu Corporation
■proprietary company/Mitsui Fudosan Residential Service Co.
■Parking space/available on site
■Pets/Keeping pets allowed (subject to detailed regulations)
■Other/Special specs non-subdivided housing
■Common Facilities/Sky Court, Sky Lounge, Sky Garden, Club Lounge, Garden Lounge, Library Lounge, Aqua Garden
Support for affluent lifestyles
■Concierge service (available from 8:00 to 22:00 ※Some services charge a fee)
・Porter Service
・Cab Service
・Taxi service
・Home attendant service
・Guest services
・Message handling service, etc.
■Dust station on each floor (available 24 hours a day)
■Supermarket on the 1st floor of the premises
■24-hour manned management (security guards at night)
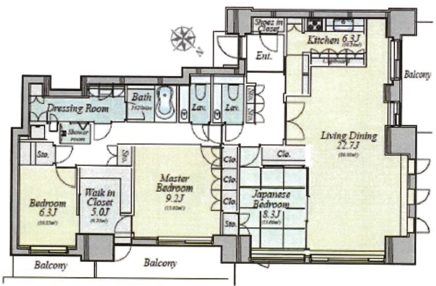
■Exclusive area / 143.42㎡ (wall core)
■15th floor
■Management fee/52,920yen (monthly)
■Repairing fee/41,260yen (per month)
■Status/Empty room